
project no.22
project facts
abstract
고으니모르🏕️
건입동 다함께 돌봄센터 현상설계
• 대지위치 : 제주시 건입동
• 설계년도 : 2022.10
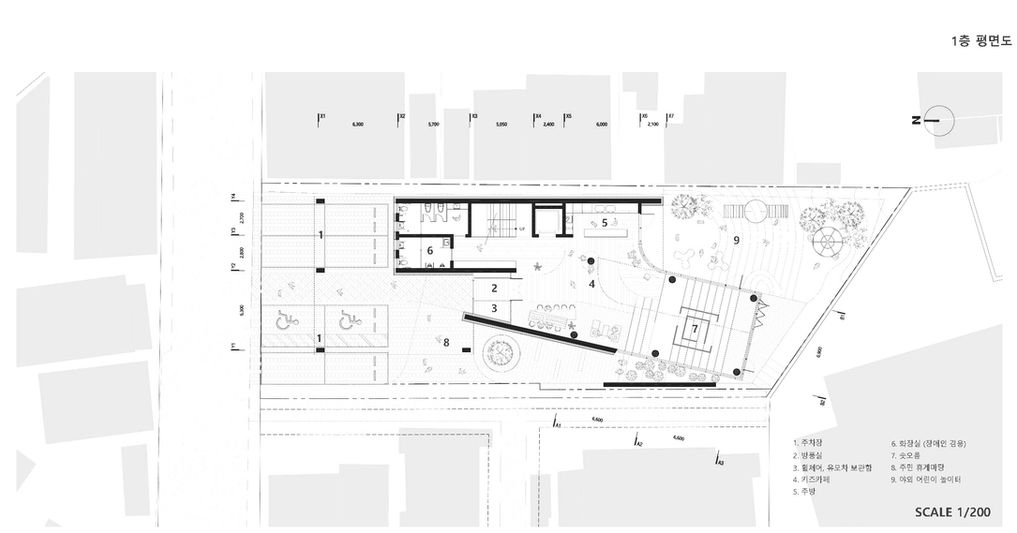
• 대지면적 : 734.90 ㎡
• 건축면적 : 326.44 ㎡
• 연 면 적 : 475.80 ㎡ (1~2F)
• 설계유형 : 현상설계
일반프로젝트에 치여살던 2022년 어느날... 느무느무 바쁜와중에 이렇게 살수만은 없다며, 그동안 하지못한 현상에 도전하게 되는데.... 🤔 식구들이 생기고 첨으로 우리 아이들과 도전하게 되는 우당탕탕 현상 도전기.. 아쉬움도 많고 보완할 점도 많은 현상이였지만 이 또한 우리의 하나의 결과물 인 것을!! 버려서는 안돼안돼!! 😱 그럼 어디 한번 들여다 보자👀
Design Strategy
1. 건입동 어린이 돌봄센터~🧐 아이들이 주로이용하게 될 이 시설의 설계는 먼저 내부의 공간을 상상하며 접근하기 시작했어요. 멈추지않은 에너지의 아이들이 보다 안전하고 보다 자유롭게 이곳에서 뛰어놀며, 창의력과 체력이 자랄 수 있는 공간이 되길 바라는 마음으로 공간을 계획했어요 😊
2. 그러면서 주변 마을과의 조화를 이루며, 필요 시 주변과도 적극적으로 소통하고 상호 교류가 이루어 지길 바랬어요 🙂 이곳을 방문하게 될 아이들 뿐아니라 학부모와 지역주빈들까지 공간을 즐기며 자연스러운 마을의 일부가 되어야하기 때문이죠💒
3. 때문에 최종적인 건물의 형태 또한 마을의 배경이 되길 원했고~🌄 주변 마을을 품고 배경이 되어줄 수 있도록 지역성을 담은 언덕의 형태를 통해 제주도의 오름과 같은 느낌으로 표현하고자 했어요🏠



“고으니모르”
[고으니:고운]+[모르:언덕] 주민과 소통하며 언전하게 맘껏 뛰어 놀 수 있는 우리동네 다함께 돌봄 언덕
Design Concept
여러분의 고향은 어디인가요? 고향이라하면 어떻생각이 먼저 떠오르시나요?🧐 저는 학창시절, 친구들과 방과 후에 온 동네를 누비고 다니며 어떠한 걱정도 없이 뛰어놀던 생각이 났어요. 그리고 그 추억속엔 항상 특정한 공간들이 자리잡고있었죠~🌞 제주도라는 낭만의 섬에서 만들어질 이 동네 어린 친구들에게 지역의 이야기를 담은 돌봄 센터는 훗날 좋은 추억의 장소가 될 길 바랬어요🧐 우리가 계획에 앞서 아래와 같이 어떤 돌봄센터가 되었으면 좋겠는지에 대한 인근 초등학생들 250명의 소중한 바램이 의견들에 조의를 기울였어요!!📝 정성스레 눌러담은 아이들의 바램 속에서정말 특별한 장소가 되었으면하는 생각이 커졌고, 맘편히 뛰어놀고, 웃고 떠들며, 추억이 쌓여 갈 수 있는 공간이 어떠공간일까에 초점을 두었죠~🌟그리고 그 공간은 한장한장 쌓여가는 앨범처럼 다양한 추억의 공간들이 켜를 이루고 유기적으로 연계되며 소통할 수 있는 공간으로 포현하고자 한게 이번 프로젝트의 컨셉이랍니다🧐

제주 동초등학교 250명 학생들의 소중한 바램이 담긴 의견서

이처럼 공간에서부터 시작된 우리의 생각은 경사지인 대지와 만나며 경사를 따라 자연스럽게 타고 흐르는 동선으로 적용하였고. 이 동선을 중심으로 펼쳐진 어러 레벨의 각기다른 층고의 공간들과 결합하며 색다른 경험을 제공할 수 있는 공간으로 표현하였어요😆
그리고 대지 내에는 보존을 해야하는 수목이 있었는데. 이 수목의 이미지를 내부까지 이어지도록 하고자 내부에 상징적인 조형물을 설치하였죠.🌞
Master Plan


Design Planning
전면도로면이 좁고 안쪽으로 깊게 구성된 대지는 2면이 도로와 접해 있었는데, 좁은면이 면하는 전면에는 6m도로와 측면으로 좁고 긴 보행자도로가 맡닿아 있었어요. 배치에 있어서 크게 3가지의 문제에 직면하게 되는데 이는 ☝️주차공간의 배치와, ☝️좁은 골목과의 관계, ☝️대지 내측에 위치하여야 하는 어린이 놀이터 위치 였어요.🤔 전면으로 주차를 해결하고 대지 안쪽으로 주변과 분리된 안전한 놀이터 구성이 필요했기에 이를 선행하고, 축을 2개로 분리해 하나의 축을 살짝틀어 좁은 골목에서도 지역 주민들과 공유할 수 있는 공지를 주어 주민들과 소통👨👩👦👦할 수 있는 공간을 계획하였죠~👩🏻❤️👨🏻👩❤️👨👩🏻❤️👨🏼
그리고 내부 공간은 경사지를 따라 자연스럽게 흐름을 가지고, 내외부가 이어지는 조경 패턴을 통해 경계를 허물고 아이들이 맘껏 뛰어 놀 수 있는 공간으로 계획하였어요~🌞
전면도로면이 좁고 안쪽으로 깊게 구성된 대지는 2면이 도로와 접해 있었는데, 좁은면이 면하는 전면에는 6m도로와 측면으로 좁고 긴 보행자도로가 맡닿아 있었어요. 배치에 있어서 크게 3가지의 문제에 직면하게 되는데 이는 ☝️주차공간의 배치와, ☝️좁은 골목과의 관계, ☝️대지 내측에 위치하여야 하는 어린이 놀이터 위치 였어요.🤔 전면으로 주차를 해결하고 대지 안쪽으로 주변과 분리된 안전한 놀이터 구성이 필요했기에 이를 선행하고, 축을 2개로 분리해 하나의 축을 살짝틀어 좁은 골목에서도 지역 주민들과 공유할 수 있는 공지를 주어 주민들과 소통👨👩👦👦할 수 있는 공간을 계획하였죠~👩🏻❤️👨🏻👩❤️👨👩🏻❤️👨🏼
그리고 내부 공간은 경사지를 따라 자연스럽게 흐름을 가지고, 내외부가 이어지는 조경 패턴을 통해 경계를 허물고 아이들이 맘껏 뛰어 놀 수 있는 공간으로 계획하였어요~🌞
전면도로면이 좁고 안쪽으로 깊게 구성된 대지는 2면이 도로와 접해 있었는데, 좁은면이 면하는 전면에는 6m도로와 측면으로 좁고 긴 보행자도로가 맡닿아 있었어요. 배치에 있어서 크게 3가지의 문제에 직면하게 되는데 이는 ☝️주차공간의 배치와, ☝️좁은 골목과의 관계, ☝️대지 내측에 위치하여야 하는 어린이 놀이터 위치 였어요.🤔 전면으로 주차를 해결하고 대지 안쪽으로 주변과 분리된 안전한 놀이터 구성이 필요했기에 이를 선행하고, 축을 2개로 분리해 하나의 축을 살짝틀어 좁은 골목에서도 지역 주민들과 공유할 수 있는 공지를 주어 주민들과 소통👨👩👦👦할 수 있는 공간을 계획하였죠~👩🏻❤️👨🏻👩❤️👨👩🏻❤️👨🏼
그리고 내부 공간은 경사지를 따라 자연스럽게 흐름을 가지고, 내외부가 이어지는 조경 패턴을 통해 경계를 허물고 아이들이 맘껏 뛰어 놀 수 있는 공간으로 계획하였어요~🌞

그리고 실내 놀이공간의 중심이 되어주는 솟오름!!😃 1층의 어린이 놀이공간과, 2층의 어린이 독서공간은 놀이 터를 마주보는 보이드공간으로 시원하게 연계되며, 각각의 공간을 이여주는 속오름이라는 타워를 계획하여, 다양한레벨에서 공간을 느끼고 자유롬게 이동하고 소통하는 공간으로 계획하였어요. 아이들은 이곳에서 숨바꼭질도 하고🙈, 벽에 기대 잭도읽고📖, 놀이터에서 노는 아이들이나 대기공간에서 휴식을 취하는 부모님, 그리고 사무실의 선생님들과도 시선을 교류하며, 안전하고 즐거운 놀이공간이 될꺼에요🎡

Design Planning
앞서 컨셉에서와 같이 입면은 마을의 배경이 되길 바랬어요.🏕️ 완만한 사선으로 구성된 입면은 주변의 마을에서 볼 수 없는 형태로 이 곳을 이용할 아이들에게는 보다 특별한 우리만의 공간으로 인식되고, 그렇다고 너무 과하지 않은 경사의 곡선은 지역성을 담은 오름의 모습에서 빌려와 언던의 형태로서 주변 마을의 배경으로서의 역할을 할꺼에요.😃 이처럼 자그마한 언덕의 형상을 한 돌봄센터는 아이들만의 비밀 놀이터이자 지역주민들이 쉬어갈 수 있는 작은 언덕으로서 자리매김하길 원하며 계획하였어요.!!🌞



여러가지 극복하지 못한 문제점들이 있어 아쉽게도 당선이 되지는 못했지만. 우리 미래를 이끌어갈 아이들을 생각하며 아이들에게 즐거움을 줄 수 있는 공간을 계획해보며,저의 어린시절도 되돌아 볼 수 있었던 듯깊은 설계였다고 생각해요~. 획일화 되고 주입식 교육이 자리잡은 우리나라 교육의 현실에서 여러분은 우리 아이들에게 어떤 공간을 선물하고 싶나요?
Project Review

JH : Manage
& Design
인에이의 뜨거웠던 8월의 어느날. 바쁜와중에도 현상을 하겠다며 달려든 프로젝트.
함께 고생해준 인에이 친구들의 많은 노고에 감사드리며~ 다시금 스스로의 부족한 부분의 느끼고 개선의 필요성을 느낄 수 있는 시간이였다. 이러한 작업은 계속적으로 이루어져야 하지않을까 싶고, 바쁘더라고 이런 과정을 통해 우리가 성장할수 있는거야~~!!😁😁
아쉬운건 아쉬운거고 현상을 처음 경험하는 우리 새로운 멤버들과 호흡을 맞추고 고군분투하며 보낸 시간들이 기억에는 가장 많이 남을 것 같은 시간이였다😃 아직 미숙한 초보 소장에게 새로운 부분에서의 노하우와 그럼에도 잃지않아야 할 중심을 되새길수 있었던 프로젝트였다🏋 결과보다 소중한 과정을 얻었다🥉
처음으로 진행 하여 기억에 찐하게 남는 현상 프로젝트였다. 이 프로젝트를 진행할 때 잠시 어린아이의 시선으로 돌아가 이 공간을 이용하는 꼬맹이가 되었다. 디자인을 할 때 충분히 고민의 시간을 기다려주고 의견을 나눔에 있어 즐거움으로 작업했지만 현실적인 문제들에 부딪히고 이를 해결해가는 과정이 다소 힘이 딸렸던 것 같다. 그러다보니 프로젝트를 큰 흐름에서 잡고 가야하는데 놓치는 부분도 생기고 작은것에 집중하게 되어 아쉬운 부분도, 느낀 부분도 많았던 현상이였다. 이를 발판삼아 앞으로 진행 할 프로젝트에서는 더 나은 결과가 나오지 않을까 기대한다. 함께 힘내면서 일했던 소장님들과 인에이 친구들에게 감사함을 표합니다.😝

HB : Design

SE : Assist
& Planning
처음이라 서툴지만 그만큼 많이 배웠던 프로젝트 😳
평면 배치와 입면 같은 설계적인 부분 이외에 '보여지는 것'이 얼마나 중요한지 깨닫게 되었던 프로젝트이다
우리의 설계를 심사위원에게 보여주기 위해 설계의도가 가장 잘 드러날 수 있는 방식으로 깜을 내고, 그에 맞게 보고서에 배치될 수 있도록 계속 함께 고민해나가야 한다는 사실을 깨달았다 또, 현상에서 지침서는 프로젝트의 처음, 중간, 마무리까지 보고 또 보면서 우리가 꼭 가져가야 할 사항들에 있어서 제대로 흘러가고 있는지를 체크해야한다는 사실도 알았다
주말은 물론 생일을 반납하면서까지 충분히 고민할 수 있게 해준 PM 윤소장에게 고맙고 🥸 아픈 다리를 질질 이끌어 내 자리까지 와서 함께 고민해주었던 PD 혜빈이 언니에게 고마운 프로젝트😎 (후반에 잠과 밥을 마다하고 몸을 갈아가면서 끝까지 일을 마무리했던 신소장😝, 밤샘작업 때 우리의 텐션을 지켜준 정소장🤤, 초반에 나와함께 머리를 맞대고 고민했던 자연다욘🥺 지친 우리에게 단비같은 두유를 내려준 망소장 😇 그리고 그냥 영혜언니까지 다 수고했어용)
컨셉을 충족시키다보니 공간적으로나 입면적으로 다소 과해보일 수 있는 결과물이 도출 되었던 아쉬운 프로젝트. 기본적으로 현상에서 요구 하는 사항을 충족시키고 합리적인 배치계획과 평면조닝이 선 뒤에 그것을 증폭시킬 수 있는 컨셉으로 다듬어 나갔으면 어땠을까 싶다. 하지만 실수의 과정이 있기에 다음번이 기대되지 않을까? 부족한 점이 있다면 보완을 하고 아쉬운점이 있다면 개선시킬 수 있는 ‘프로젝트 리뷰’가 있기에 인에이는 오늘도 성장한다! 같은 실수를 반복하지 않길 바라며 다시 한번 현상 지침서를 순차적으로 언급하자면,
🔵첫째 - 초반 배치/평면때의 많은 브레인스토밍을 통해서 대안 결정 할 것!
🔴둘째 - 보고서는 PM이 핸들링 하고 사전에 충분한 목업을 통해 각 작업자들에게 내가 하는 일이 무엇을 위한 작업인지 충분히 주지 시킬 것!
🟢셋째 - 현상 회의 시에는 메인프로젝트 진행 인원 이외에 최대한 모든 인원이 참여해서 피드백을 나눌 수 있도록 할 것!
🟡넷째 - 제출 하루 전날 무조건 완성하여 나머지 하루는 보완을 위한 작업만 되도록 할 것!
충분히 좋은 분위기와 과정을 얻어갔던 시간들이었지만 다음번엔 결과까지 뒷받침 할 수 있는 순간을 마주하길 바라며 이상.











